Logo
4 seasons 4 you

 

Pl

 

Dom modułowy

Wszystkie podane ceny są cenami netto i nie uwzględniają kosztów dostawy ani podłączenia do mediów w miejscu instalacji.

Dostawa objęta jest gwarancją bankową – otrzymamy płatność dopiero w momencie, gdy zobaczysz dom w magazynie w Warszawie.

Projekt domu został opracowany tak, aby zapewniał komfortowe warunki mieszkalne przy temperaturze otoczenia do -10°C, jednocześnie minimalizując koszty ogrzewania.

Warszawa dysponuje wolną działką o powierzchni 50 m2 pod ten dom oraz miejscem parkingowym na 1 samochód. Czynsz za tę działkę wynosi 700 zł miesięcznie.

W odległości 25 km od centrum Warszawy znajduje się wolna działka o powierzchni 50 m2 pod ten dom oraz miejsce parkingowe na 1 samochód. Czynsz za tę działkę wynosi 500 zł miesięcznie.


Budynek piętrowy
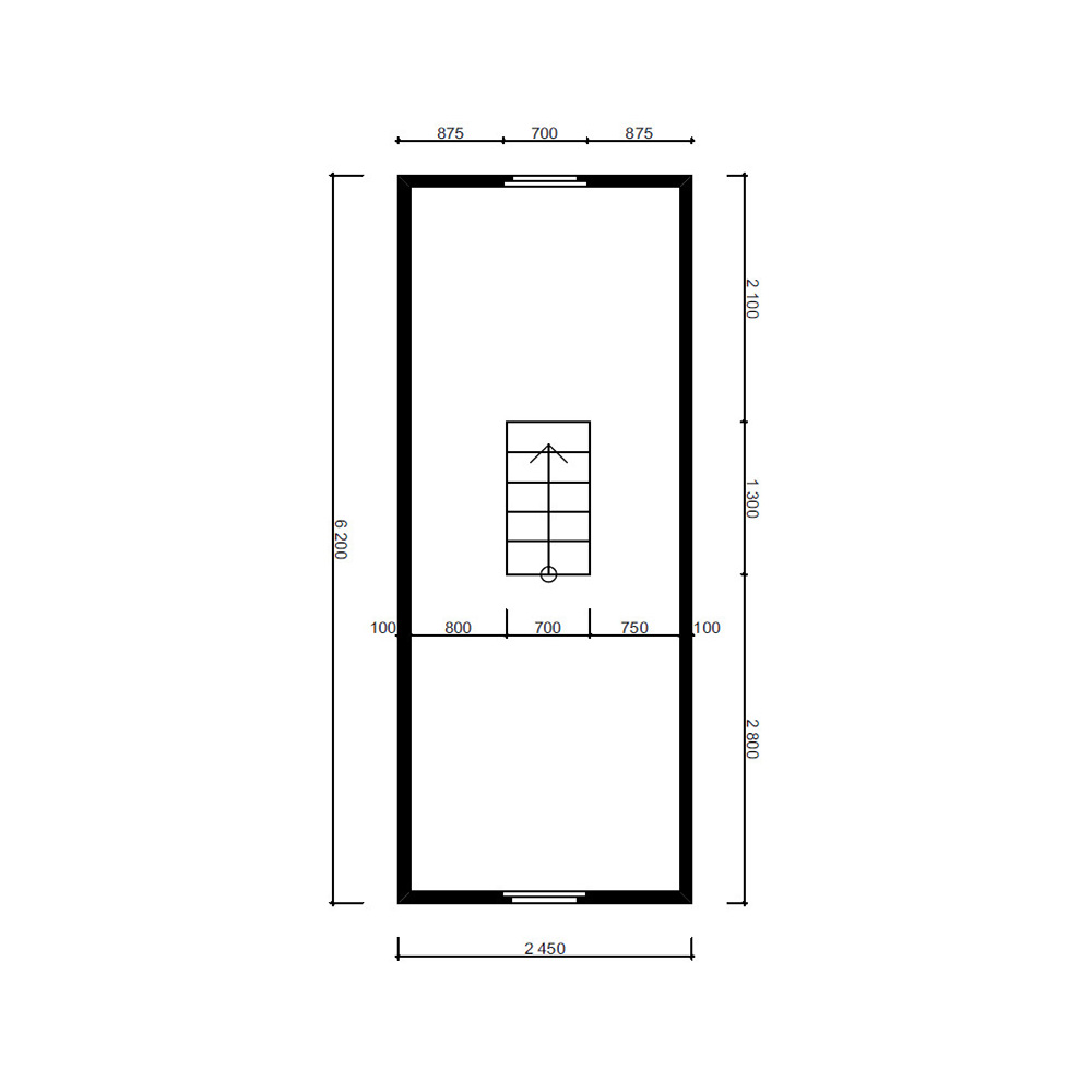
Wymiary zewnętrzne domu:
Długość 6,20 m
Szerokość 2,45 m
Wysokość parteru wynosi 2,20 m
Wysokość najwyższej kondygnacji wynosi 2,50 m

Grubość ocieplonych podłóg, ścian, sufitów, dachów 0,10 m
1. Prysznic, toaleta, umywalka
2. Zlew kuchenny
3. Schody
4. Lodówka i pralka
5. Kuchenka gazowa lub elektryczna
6. Stół kuchenny i narożnik
7. Szafa
8. Łóżko
9. Łóżko
Nazwa elementów
Wersja podstawowa dom parterowy
Wersja podstawowa budynek piętrowy
Wersja dom parterowy rozbudowana konfiguracja
Wersja budynek piętrowy rozbudowana konfiguracja
Cena netto
57000 zł
99000 zł
74000 zł
118000 zł
 
Wszystkie okna i drzwi są już zamontowane
Pic logo
Pic logo
Pic logo
Pic logo
Dekoracja wnętrz ścian domu
Pic logo
Pic logo
Pic logo
Pic logo
Prysznic, toaleta zwykła lub kasetowa, umywalka w toalecie
Pic logo
Pic logo
Pic logo
Pic logo
Zlew kuchenny
Pic logo
Pic logo
Pic logo
Pic logo
Sieć elektryczna wewnętrzna
Pic logo
Pic logo
Pic logo
Pic logo
Grzejniki elektryczne
Pic logo
Pic logo
Pic logo
Pic logo
Wewnętrzne schody na drugie piętro
Pic logo
Pic logo
Meble kuchenne
Pic logo
Pic logo
Kuchenka elektryczna lub gazowa
Pic logo
Pic logo
Lodówka 150L
Pic logo
Pic logo
Stół i narożnik w kuchni
Pic logo
Pic logo
Na parterze znajduje sięsypialnia łóżko pojedyncze lub podwójn
Pic logo
Pic logo
Na parterze znajduje się szafa
Pic logo
Pic logo
Na pietrze znajduje się łóżko pojedyncze lub łóżko podwójne
Pic logo

Na indywidualne zamówienie i za dodatkową opłatą oferujemy następujące usługi:

  • montaż klimatyzacji
  • instalację pralki
  • montaż lodówki zgodnie z życzeniem klienta
  • montaż pieca na drewno
  • wykonanie dużej werandy-tarasu o wymiarach 3 × 2,5 m przed wejściem